欢迎来到湖南视路美文化传播有限责任公司官方网站!

视觉一路线一美学效果解决服务商 设计|研发|制作|安装

7*24小时服务热线:

188-7423-4250

项目案例 | 招商华发依云曦城导视建设

浏览次数:209 日期:2024-01-16 10:02:19

  • 项目介绍
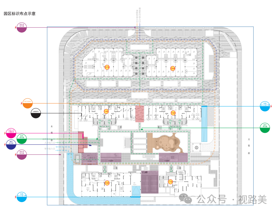
招商华发依云曦城项目占地96273.38平方米,位于梅溪湖国际新城二期中部,北邻长沙高新区,南连岳麓国家大学城,东承国际新城一期建设的优美环境,国际新城与长沙市主城区的五一广场隔江相望。
  • 设计思路
采用简约现代的设计语言、通过现代艺术手法,对项目精神进行抽象化演绎,遵循“标识是环境中随处可见的,而非突兀的障碍物”的原则,在标识造型及材质上做减法,呈现以一种融于似水的环境之中,让我们在忙碌的生活中享受片刻自由。
  • 实景呈现
  • 户外形象类
  • 户外指引类

  • 户外功能信息类

 
  • 室内指引类

 
  • 室内功能信息类








在这个异彩纷呈的时代里、

锐意进取的房企中,

招商华发品质深入人心。

视路美坚持用精工演绎品质,

用品质为作品说话。

  • 工作场景
细节之处,方显匠心。

视路美以客户为本,严谨考量产品细节,

每一道工艺与材料做到一丝不苟。

用专注成就专业,用细节缔造完美。

▼「招商华发依云曦城」项目施工现场